工作时间 周一至周六 8:00-17:00
SJP-870微机消谐保护装置概述
消谐装置是集消谐、 PT控制、保护、测量和通讯等多功能于一体的高科技产品。适用于3-66KV的电力系统抑制铁磁谐振过电压, 保护高压熔丝、 电压互感器免遭损坏的最理想的自动保护装置。
1.1 主要功能
消谐功能:具有消除电网中的1/3次分频、1/2次分频、基频和3次高频谐振的功能;
P T控制:PT控制和PT切换并列功能。
测量功能: Uab,Ubc,Uca,Ua,Ub,Uc,3U0,频率;
通讯功能:采用RS485总线方式, MODBUS通讯协议;
保护功能: PT断线,过电压,低电压,零序接地,零序过压。
1.2 主要技术特点
采用32位嵌入式ARM Cortex-M3CPU处理器,运算速度快,内部资源丰富简化硬件电路设计,增强抗干流能力,提高装置安全性和稳定性;
消谐动作频率范围(Hz)1/3次分频: 15~18;1/2次分频: 23~27 ;基频:48~52;3次高频: 145~162;测量精度:误差<0.1Hz。
消谐动作电压(V)3次高频、基频: 150±5;1/2次分频、1/3分频:30±5;接地:30±5;过电压:120±5。
重复消谐功能:即谐振波被阻尼消除后,若再次被激发产生,装置能再次起动予以消除。重复消谐间隔时间为4秒。
人机接口:采用带高亮度背光的128X64液晶显示器,菜单化设计,中文菜单显示。10个高亮度LED指示灯;6个操作按键,用于操作菜单和当地参数设置功能; 1个信号复l归按键,专用于本地复l归故障和告警信号。
记景容量:査看最后的谐振数据和接地数据各300次。累计谐振、接地总次数各999次。
抗干扰能力强:不受电网操作过电压、雷电过电压和各次谐波过电压的干扰影响。设有完善的自检功能;能及时发现自身缺陷并发出告書信号。
装置内阻具有开关特性:正常运行期间及在各种非铁磁谐振过电压作用下,晶闸管SCR截止,装置呈高阻状态,约数百Ka;装置启动消谱期间,可控硅全导通(导通角接近180度) ,呈低阻态,约数m0~数拾m0。
装置自检:具有完善的自检能力,发现装置工作异常将自动发出自检信号。自检的项目包括:设备参数、保护定値、开入开出电源、A/D通道、 RAM、 FNRAM、继电器线圈等。
1.3 产品选型

SJP-870微机消谐保护装置参数
技术参数



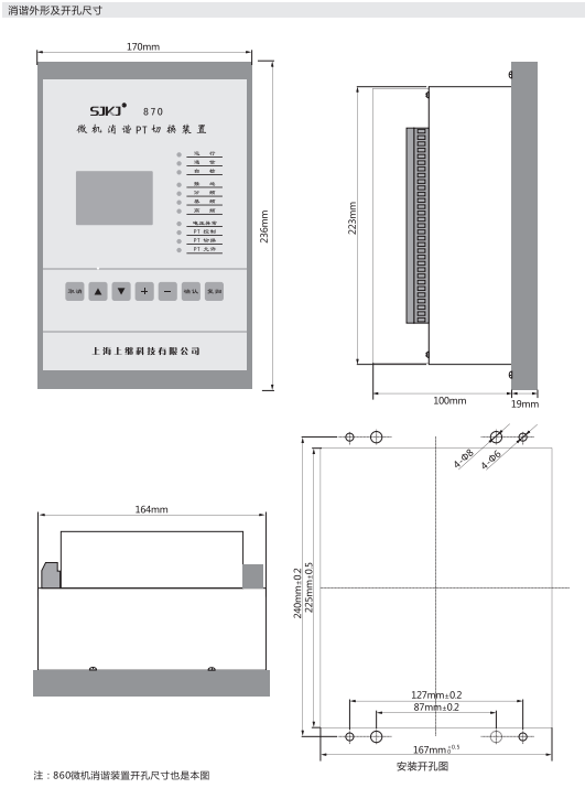
SJP-870微机消谐保护装置尺寸

矿山冶金
化工、化肥、水泥、纺织
能源、环保
机械电子
火电、水电
造纸、制糖、制药
市政基础建设
原料、钢铁

