工作时间 周一至周六 8:00-17:00
JC-17冲击继电器(以下简称产品)用于电力系统直流操作的继电保护及控制回路中,作为集中信号的主要元件。
JC-17冲击继电器概述
JC-17冲击继电器(以下简称产品)用于电力系统直流操作的继电保护及控制回路中,作为集中信号的主要元件。
1.1主要特点
1 1 1产品具有手动复归与延时自动复归两种复归方式。
1.1.2在预告延时时间可内,动作电流为一个长信号与短信号重督时,只要长信号不返回,产品应可靠动作。
1.1.3产品内附延时预告信号的延时时间元件和报警定时时间元件,可省去外部的两只时间继电器。
1.1.4音响报警时,除手动复归音响外,产品可经定时回路自动解除音响。
1.1.5产品对白炽灯光字牌灯丝冷热态电阻的变化、电源纹波以及触点料动的影响均能有较强的抑制能力,保证产品正确动作。
1.1.6产品适用于不同的中央信号接线方式,不论产品接于电源的正端或负端,均无需设置跨线。
1.1.7产品具有很小的功耗,因此不需要外附电阻。
JC-17冲击继电器型号与规格
产品型号及含义如下:

JC-17冲击继电器技术数据
2.1额定参数
a)辅助电压额定值: DC220、110、48V;
b)最小动作电流: DC100mA、15mA。
2.2动作电流:产品的动作电流不大于最小动作电流的80%。
2.3最大长期稳定电流: 2A( 100mA规格) , 0.45A( 15mA规格) 。
2.4预告延时时间调节范围: 1~10s范围内连续可调,在任一点一致性不大于10%。
2.5报警定时时间调节范围: 0.5~5s范围内连续可调,在任一点一致性不大于10%。
2.6在预告延时时间内,当动作电流为一个长信号与短信号重叠时,只要长信号不返回,产品应可靠动作。
2.7功率消耗:
动作电流回路功耗:产品在最大冲击电流路数时的功耗不大于2.5W;
直流辅助电压回路功耗:产品在额定电压时的功率消耗不大于2.5W。
2.8触点性能
2.8.1在电压不超过250V,电流不超过2A,时间常数为5±0.75ms的直流有感负荷回路中,产品输出触点的断开容量为30W。
2.8.2在电压不超过250V,电流不大于2A的交流电路(cos(p=0.4±0.1)中,触点的断开容量为50VA。
2 .8.3输出触点电路在上述负荷条件下,装置应可靠动作及返回5x103次。
2.9绝缘性能
2.9.1产品下列部位应进行绝缘性能测试;
a)各常电的导电电路分别对地之间 ;
b)无电气联系的各帯电的导电电路之间 。
2.9.2绝缘电阻
对2.9.1所列部位,用开路电压为500V的测试仪器测定,其绝缘电阻不小于300M0。
2.9.3介质强度
对2.9.1所列部位,应承受频率为50Hz的交流试验电压2kV(有效值) ,历时1min的检验,无闪络或击穿现象
2.9.4冲击电压
对2.9.1所列部位,能承受标准雷电波的短时冲击电压试验,试验电压为5kV
2 10承受衰減振荡波干扰能力
能承受GB/T14598.13-1998规定的频率为1MHz及100kHz衰減振荡波(第一个关波电压辐值共模2.5kV,差模为1.0kV) 脉冲群干流试验。2 1 1承受静电放电干流
能承受G B/T G B/T14598. 14-1998规定的严酷等级为m级的静电放电干流试验 ;
2 .1.2承受辐谢电磁场干流
能承受GB/T GB/T14598.9-1995规定的严酷等级为m级的辐射电磁场干扰试验;
2 .1.3承受快速瞬变干流
能承受G B/T G B/T14598. 10- 1997第4章规定的严酷等级为m级的快速瞬变干扰试验。
2.1.4机械性能
工作条件:能承受严酷等级为 I级的振动响应检验。
运输条件:能承受严酷等级为 I级的振动耐久、冲击耐久、碰撞检验。
2.15环境条件
环境温度: -10~+50°C, 贮运-25~70°C在极限温度下不施加激励量产品不出现不可逆变化,恢复后产品应能正常工作,,相对湿度:最温月的月平均最大相对湿度为90% ,同时该月的月平均最低温度为+25°C,且表面无凝露;最高温度为+40°C时,平均最大相对湿度不超过50%,
JC-17冲击继电器产品原理

JC-17冲击继电器产品使用说明
4. 1整定方法
产品预告延时时间,报警定时时间由铭牌上的可调电阻整定,预告延时时间调节范围1~10s范围内连续可调,报警延时时间调节范围为0. 5-5s范围内连续可调,旋动可调电阻即可改变整定时间。
JC-17冲击继电器产品面板布置图


JC-17冲击继电器使用注意事项
如果继电器接于信号电源的负端,则端子4接信号的正电源,端子7接信号的负电源,由端子5输入报警电流,由端子2接入信号正电源用于手动复归报警音响,端子1、3为一对动合触点。
如果继电器接于信号电源的正端,则端子5接信号的正电源,端子4接信号的负电源,由端子7输入报警电流,由端子2接入信号负电源用于手动复报警音响,端子1、3为一对动合触点。
本继电器内部印制电路板上安装了熔断器,在光字牌短路时,熔断器熔断,只要更换熔断器即可恢复工作,可防止光字牌短路时损坏继电器。熔断器规格为5A(动作电流为100mA)或1A(动作电流为15mA) 。
JC-17冲击继电器调试检验说明
5.1检査线路图
检査线路国见图4。
5.2动作值检査、手动复归检査
合S1、 S2 ,调R2使直流毫安表的读数为产品输入激励量标称值的80% ,接开S2 ,再合S2 ,产品应可靠动作。产品动作后合S4 ,产品应返回。反复测验五次。
5.3动作电流为一个长信号与短信号重量时检査
合S1、 S2、 S3调R1、 R2使直流电流表的读数、直流毫安表的读数为产品输入激励量标称值,拉开S2、 S3,再合S2,在预告延时时间内,合S3再拉开S3 ,产品应可靠动作。反复测验五次。
5.4最大长期稳定电流检査
合S1、 S2、 S3调R1使直流电流表的读数为产品最大长期稳定电流,调R2使直流毫安表的读数为产品的输入激励量标称值,拉开S2 ,再合S2 ,产品应能可靠动作。反复测试五次。
5.5预告延时时间、报警定时时间检査
合S1、 S2 ,调R2使直流毫安表的读数为产品输入激励量标称值,预告延时时间、报警定时时间分别整定最大和最小调节范围,拉开S2 ,再合S2 ,分别测试预告延时时间、报警定时时间,各测验五次,以确定一致性误差。一致性误差应不大于10%。

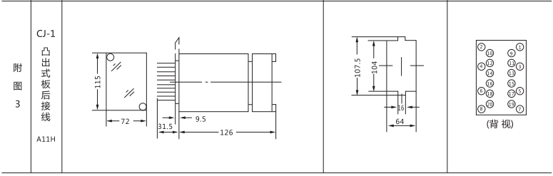
JC-17冲击继电器外形结构及安装开孔尺寸


矿山冶金
化工、化肥、水泥、纺织
能源、环保
机械电子
火电、水电
造纸、制糖、制药
市政基础建设
原料、钢铁
上一篇:DT-13/200同步检查继电器
下一篇:JC-2冲击继电器

