工作时间 周一至周六 8:00-17:00
SJ-11A/139集成电路时间继电器采用石英晶体振荡器和CMOS集成专用电路 ,其延时精度远高于电磁型时间继电器 ,为电力系统继电保护缩短主保护和后备保护时间级差提供保证。
SJ-11A/139集成电路时间继电器概述
SJ-11A/139集成电路时间继电器采用石英晶体振荡器和CMOS集成专用电路 ,其延时精度远高于电磁型时间继电器 ,为电力系统继电保护缩短主保护和后备保护时间级差提供保证,该继电器外形、接线方式与DS电磁型时间继电器完全相同,是更新换代的理想产品、具有精度高、功耗小,动作时间准确,整定直观方便等优点。
SJ-11A/139集成电路时间继电器工作原理
SJ-11A/139集成电路时间继电器采用大规模CMOS专用集成电路。上电瞬间,晶振起振, CUP复位,从零开始正向计数,同时读取拨盘设定值的时基常数;当计数值与设定值同时,输出高电平,驱动三极管,出口继电器动作,且利用触点自保持,以保证不发生抖动;当电源消失,出口继电器则返回,工作原理如下图所示:

SJ-11A/139集成电路时间继电器型号命名及含义

SJ-11A/139集成电路时间继电器主要技术参数
4.1 延时范围和级差 延时范围: 0.02S-9.99S、 0.1S-99.9S、1M-999M,无标注按0.1S-99.9S供货。
4.2 延时整定误差 继电器20℃±5℃时,施加额定电压下,继电器延时整定误差(包含一致性):整定值≤100S时,误差<+0.1s;>100S时,误差<±0.1%。
4.3 返回时间 用切断电路的方法,使继电器断电,继电器触点返回至始位置的时间不大于20mS。
4.4 电源电压允许变动范围 电源电压允许变动范围为额定电压低0.8~1.1倍。
4.5 触点容量
继电器输出电路的触点能断开电压不大于250V, 时间常数为5±0.75mS的直流有感负荷电路为80W ; 电压不大于250V的交
流电路(功率因数COSΦ为0.4±0.1)为300VA。继电器可长期接通10A。
4.6 环境温度 -10℃~+50℃
4.7 介质强度 继电器各导电端子连在一起对为露的非常电金属部分或外壳之间,能承受2000V(有效值0,50Hz的交流电压,历时1 分钟试验而无绝缘击穿或飞弧现象。
4.8 绝缘电阻 继电器各导电端子连在一起对外露的飞带电金属部分或外壳之间,用开路电压500V的兆欧表测量其绝缘电阻不小于300MΩ。
4.9 电寿命继电器触点接于规定容量的电路负荷重,能可靠动作及返回,电寿命为105次。
4.10 机械寿命 继电器不接负荷能可靠动作及返回,其机械寿命为106次
4.11 功率消耗 在额定电压下,继电器功率消耗不大于5W。
4.12 抗干扰性能 继电器的抗干扰负荷DL478-92《静态继电保护及安全自动装置通用技术条件》。
SJ-11A/139集成电路时间继电器内部接线图及外引接线图

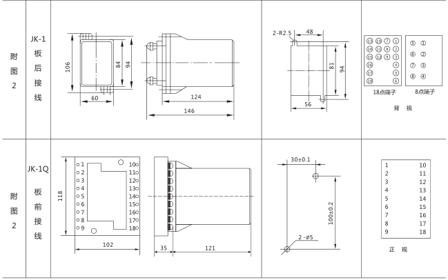
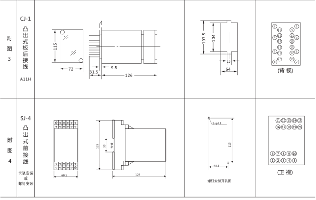
SJ-11A/139集成电路时间继电器外形尺寸及开孔尺寸



矿山冶金
化工、化肥、水泥、纺织
能源、环保
机械电子
火电、水电
造纸、制糖、制药
市政基础建设
原料、钢铁
上一篇:SJ-11A/138集成电路时间继电器
下一篇:SS-94B/1-2时间继电器

